樓盤名:托樂嘉花園
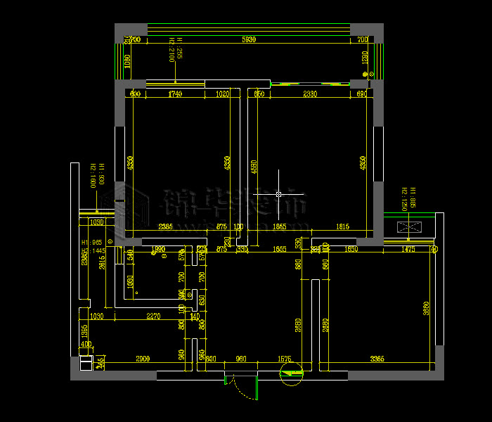
托樂嘉花園原始結構圖:

托樂嘉花園原始結構分析:
戶型優點:
1、2廚房方正,采光好
2、改過后的衛生間較寬敞
3、主臥室通風好,且使臥室的有陽臺。
戶型缺點:
1、 廚房不規整,布局難,采光不好。
2、衛生間小,通風不好。
3、主臥室通風不好。
托樂嘉花園平面布置圖:

托樂嘉花園96平米實景參考圖:
參考圖↓

參考圖↓

想了解更多托樂嘉花園戶型資料么?
錦華裝飾準備了托樂嘉花園各戶型全套設計方案、工程量報價、參考效果圖、主材搭配方案.歡迎您和網絡客服取得聯系,預約來店面詳細溝通.錦華裝飾,設計專家!.
江蘇家裝示范品牌
代表地區優秀設計聲音
集25年工程管理經驗之大成
省時、省力更省心
| 走進錦華 | 設計團隊 | 作品列表 | 戶型解析 | 裝修百科 |
關注錦華公眾號
|
瀏覽手機官網 |
全國熱線 025 86550815 |
||||||||||
| 新聞列表 | 錦華文化 | 堂杰國際設計 | 1865旗艦店 | 極簡 | 中古 | 秦淮金茂府 | 常見問題 | ||||||||||
| 全國分公司 | 錦華招聘 | 河西旗艦店 | 鼓北旗艦店 | 法式 | |||||||||||||
| 錦華簡介 | 聯系我們 | 城東旗艦店 | 江寧旗艦店 | 歐式古典 | 北歐 | 中交錦方 | |||||||||||
| 資質榮譽 | 法律聲明 | 江北旗艦店 | 江浦店 | 美式田園 | 新古典 | 溧水玖宸府 | |||||||||||